Walsall, West Midlands

£200,000
Residential
For Sale

Property information

Property Summary

BRAND NEW Park Home (40'x20') | Residential development | Exclusive for over 45s | Pet friendly | Established park with a new phase | Fully furnished | Modern design | Decking | Community living | Local amenities | Scenic surroundings | High specification | Part exchange available

Property Features

  • Part Exchange available
  • Fully furnished
  • Pet friendly
  • Residential development
  • Two bedrooms
  • Exceptionally high specification
  • Brand new home
  • Modern design
  • Established park
  • Over 45s

Full Details

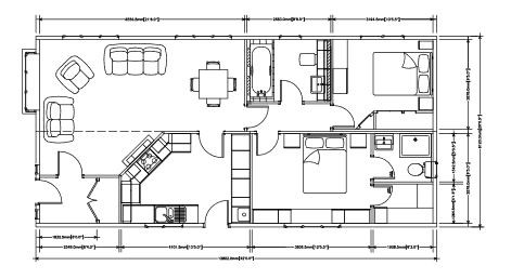
THE HOME 
This brand-new, modern-furnished Stately Badminton (40'x20') luxury park home is perfect for those looking for a detached, easy-to-maintain, bungalow-style property. The Badminton’s open-plan lounge-diner maximises space, whilst the kitchen has all the amenities required in a modern household. With your comfort in mind, the master bedroom boasts a much-welcomed ensuite and walk-in wardrobe. There is a second double bedroom and a bathroom. There is also double glazing, central heating, and a driveway with off-road parking for 2 cars.

THE PARK 
This established residential development has 65 existing homes with a new phase of development with homes arriving soon. The homes are exclusive for the over 45s and pet friendly. The park home lifestyle provides community living for like-minded people. The park is landscaped and private, to offer safe and secure living. Built in a countryside location, the park offers their residents the opportunity for an active lifestyle that is also suitable for pets. There is also a bus stop on the park.

THE AREA
The development is located in the heart of Brownhills in the Midlands. Residents benefit from excellent local amenities, scenic surroundings, and easy access to nearby towns and transport links. The market town of Walsall is 20 minutes from the park, offering high street shops, restaurants and entertainment venues. Wolverhampton is just a few miles further. Located north of Birmingham, the development is less than an hour from the Bullring shopping centre.

Local amenities

Bus stop: 0.5 miles
ALDI: 1 mile
Train station: 5.3 miles
Doctors surgery: 1.2 miles

HOUSE TO SELL?
Contact Quickmove for a free, no-obligation Part-Exchange valuation on this home. Enjoy a hassle-free move, with no estate agents’ fees or solicitors to pay. You even get to keep the keys to your existing property for 2 weeks after completion, so you can move out at your leisure.

Site fees (at time of listing): £210 per month
Please note that the site fee (also known as pitch fee, or ground rent) is subject to change and reviewed annually. Ground rent can only be increased in line with the Consumer Price Index. For more information, please get in touch.

Tenure: Virtual Freehold
Virtual Freehold means that when buying a park home, you purchase the physical property outright and lease the land it sits on in perpetuity, for the entirety of the time the home is sited. These properties are not mortgageable, if you are uncertain or would like further advice, please consult a solicitor.

Council Tax Band: A

NOTE: The information in this property listing is correct to the best of our knowledge. We recommend any potential purchaser is aware of all details including park rules and conditions before sale completion. We also recommend consulting the Mobile Homes Act 2013 for conditions of any future sale of this property.

Park Home Assist Insurance Services (Part Of Assist Insurance Services Ltd) are Authorised and Regulated by the FCA and Financial Conduct Authority and are one of the UK’s leading providers of Park Home Insurance. As one of the leading providers of Park Home Insurance we provide modern up-to-date policies specifically designed for Park Home Owners, yet pride ourselves on our old fashioned and traditional values where customer service and personal service comes first.

Our residential park home policies are new for old as standard, are underwritten by certain underwriters at Lloyd’s of London and back by our multi-award-winning claims and customer service department.

Our policies provide a combination of excellent comprehensive cover with some unique additional benefits, coupled with very competitive premiums and generous discounts. With numerous optional additional covers, every policy can be personalised to each policyholders personal circumstances, and therefore you only need to pay for what you need, ensuring that that the premium you pay reflects the cover you enjoy.

www.parkhomeassist.co.uk

Request More Details or Viewing

    I would like more details

    I would like to view a property

    I have a Property to sell

    I would like a Part Exchange valuation

    Sign up to updates on park homes for sale from Quickmove
    Sign up to updates on park home Insurance from Park Home Assist

    * Mandatory fields

    Contact us today for more information and viewings.

    Quickmove Properties logo