Taunton, Somerset
Property information
Property Summary
Property Features
- Part Exchange available
- Fully furnished
- Over 50s
- Brand new home
- Fully fitted kitchen
- Retirement property
- Shops and amenities nearby
- Residential park
- Established park
- Countryside walks
Full Details
THE HOME
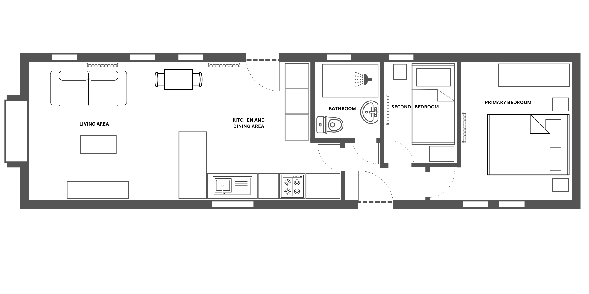
This home is perfect for those looking for a detached, easy to maintain, bungalow style retirement property. The Pathfinder Bespoke is an airy and light home. It has a wonderful lounge/fitted kitchen with integrated appliances. The home features two bedrooms with plenty of storage. Beside the bedroom is the family bathroom which is complete with shower facilities. This home also comes with it's own garden shed for extra storage.
THE PARK
The stunning home is sited on an established residential development for those aged 50 and over. This welcoming community has a thriving social club with a regular bus service nearby. It is set in a delightful setting 4 miles from the centre of Taunton, and 23 miles from the pleasant town of Yeovil, with its excellent shopping facilities, and good rail service both to London and the South West.
THE AREA
Surrounding this park there are many places of interest to explore in the Somerset countryside, including the nearby village of Montacute with its outstanding Tudor House and beautiful grounds. Milk and newspapers are delivered daily and a local superstore is only a few minutes drive away.
HOUSE TO SELL?
Hassle-free Property Part-Exchange is available from recommended part-exchange specialists Quickmove Properties, with no estate agent fees, no solicitors fees and no market uncertainty.
Site fees (at time of listing): £276 per month
Please note that the site fee (also known as pitch fee, or ground rent) is subject to change and reviewed annually. Ground rent can only be increased in line with the Consumer Price Index. For more information, please get in touch.
Tenure: Virtual Freehold
Virtual Freehold means that when buying a park home, you purchase the physical property outright and lease the land it sits on in perpetuity, for the entirety of the time the home is sited. These properties are not mortgageable. Please consult a solicitor for further information.
Council Tax Band: A
NOTE: The information in this property listing is correct to the best of our knowledge. We recommend any potential purchaser is aware of all details including park rules and conditions before sale completion. We also recommend consulting the Mobile Homes Act 2013 for conditions of any future sale of this property.
Park Home Assist Insurance Services (Part Of Assist Insurance Services Ltd) are Authorised and Regulated by the FCA and Financial Conduct Authority and are one of the UK’s leading providers of Park Home Insurance. As one of the leading providers of Park Home Insurance we provide modern up-to-date policies specifically designed for Park Home Owners, yet pride ourselves on our old fashioned and traditional values where customer service and personal service comes first.
Our residential park home policies are new for old as standard, are underwritten by certain underwriters at Lloyd’s of London and back by our multi-award-winning claims and customer service department.
Our policies provide a combination of excellent comprehensive cover with some unique additional benefits, coupled with very competitive premiums and generous discounts. With numerous optional additional covers, every policy can be personalised to each policyholders personal circumstances, and therefore you only need to pay for what you need, ensuring that that the premium you pay reflects the cover you enjoy.
Request More Details or Viewing
Contact us today for more information and viewings.

Contact
Tel: 01604 946 733
Working Hours:
Mon-Fri 9am to 5.30pm
Correspondence Address:
Park Home Search
Royal House
Queenswood
Newport Pagnell Road West
Northampton
NN4 7JJ












