St Leonards, Dorset
Property information
Property Summary
Property Features
- Part Exchange available
- Community living
- Pet friendly
- Two double bedrooms
- Exceptionally high specification
- Modern design
- Pre-owned park home
- Outstanding location
- Decking
- Over 45s
Full Details
THE HOME
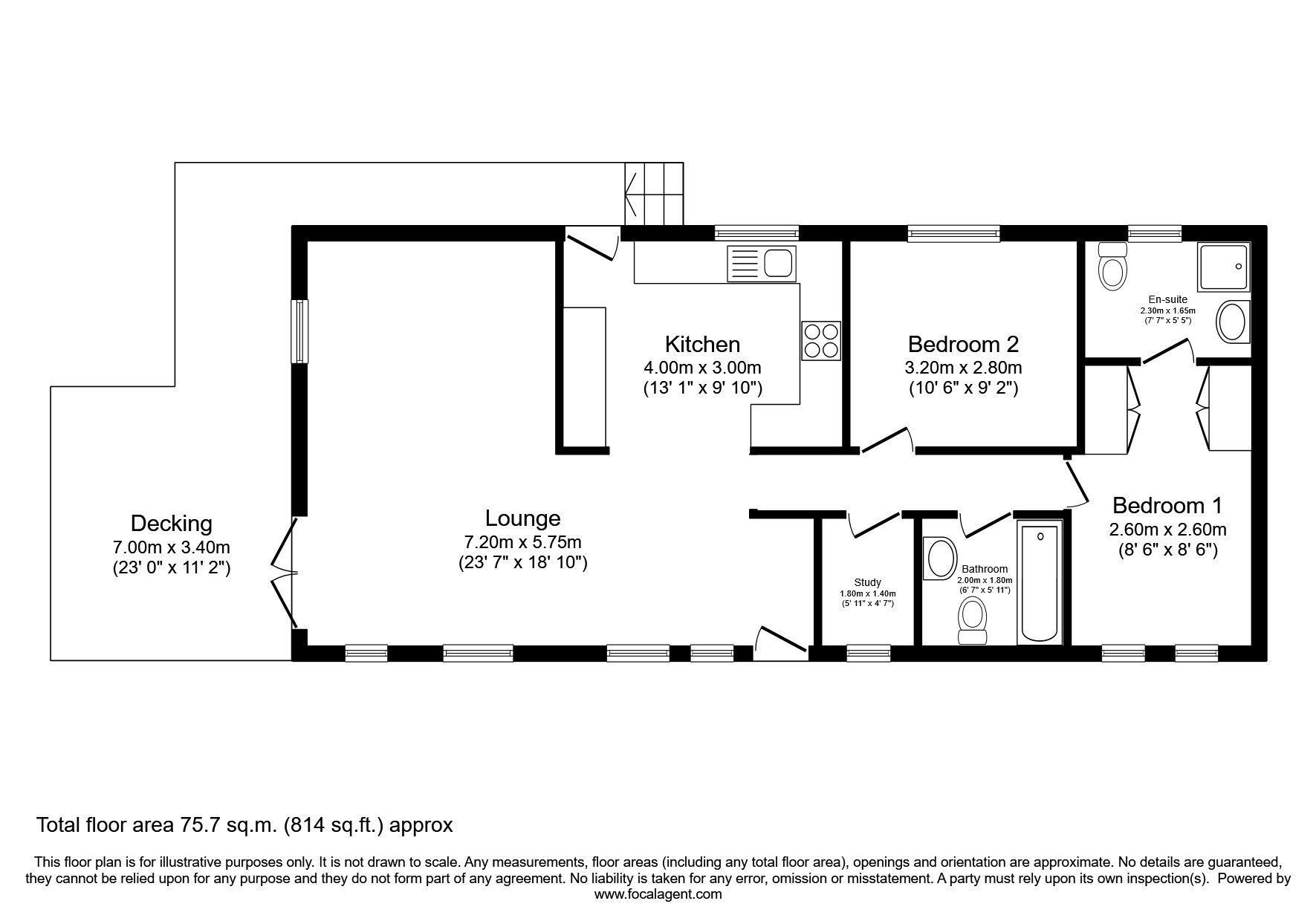
This modern pre-owned, luxury Omar Newmarket (45'x20') park bungalow is perfect for those looking for a detached, easy to maintain, bungalow style retirement property. The home is in an excellent condition and features a comfortable lounge suite and a semi open-plan kitchen and a comfortable living area. The home feature two bedroom with modern furniture, and two bathrooms. The home overlooks the forest and the exterior features a driveway, easy to maintain garden area and decking area that captures the afternoon sun perfectly.
THE PARK
This park is a private development of detached luxury park homes for the over 45's, offering the chance to purchase a luxury but affordable home in a highly sought-after rural location near Ringwood, Dorset, and embodies a relaxed lifestyle with a welcoming atmosphere. Set within beautifully landscaped grounds, every home enjoys a modern design, ample parking, a secluded private garden and a safe, welcoming community of like-minded residents. The park is pet friendly (typically 2 per home).
THE AREA
Set in stunning surroundings, ideal for making the most of the New Forest and Moors Valley Country Park which both offer wonderful walking trails. You will also find it incredibly convenient to enjoy award winning beaches and the stunning Dorset and neighbouring Hampshire countryside. Walk in the footsteps of your Neolithic ancestors at Stonehenge, one of the wonders of the world and the best-known prehistoric monument in Europe.
Nearby amenities:
- Doctors Surgery - 3 miles
- Nearest Shop - 1.1 miles
- Post Office - 2.5 miles
- Nearest Supermarket - 5 miles
- Nearest Train Station - 4 miles
- Nearest Hospital - 5.5 miles
HOUSE TO SELL?
Contact Quickmove for a free, no-obligation Part-Exchange valuation on this home. Enjoy a hassle-free move, with no estate agents’ fees or solicitors to pay. You even get to keep the keys to your existing property for 2 weeks after completion, so you can move out at your leisure.
Site fees (at time of listing): £289.21 per month
Please note that the site fee (also known as pitch fee, or ground rent) is subject to change and reviewed annually. Ground rent can only be increased in line with the Consumer Price Index. For more information, please get in touch.
Tenure: Virtual Freehold
Virtual Freehold means that when buying a park home, you purchase the physical property outright and lease the land it sits on in perpetuity, for the entirety of the time the home is sited. These properties are not mortgageable. Please consult a solicitor for further information.
NOTE: The information in this property listing is correct to the best of our knowledge. We recommend any potential purchaser is aware of all details including park rules and conditions before sale completion. We also recommend consulting the Mobile Homes Act 2013 for conditions of any future sale of this property.
Park Home Assist Insurance Services (Part Of Assist Insurance Services Ltd) are Authorised and Regulated by the FCA and Financial Conduct Authority and are one of the UK’s leading providers of Park Home Insurance. As one of the leading providers of Park Home Insurance we provide modern up-to-date policies specifically designed for Park Home Owners, yet pride ourselves on our old fashioned and traditional values where customer service and personal service comes first.
Our residential park home policies are new for old as standard, are underwritten by certain underwriters at Lloyd’s of London and back by our multi-award-winning claims and customer service department.
Our policies provide a combination of excellent comprehensive cover with some unique additional benefits, coupled with very competitive premiums and generous discounts. With numerous optional additional covers, every policy can be personalised to each policyholders personal circumstances, and therefore you only need to pay for what you need, ensuring that that the premium you pay reflects the cover you enjoy.
Request More Details or Viewing
Contact us today for more information and viewings.

Contact
Tel: 01604 946 733
Working Hours:
Mon-Fri 9am to 5.30pm
Correspondence Address:
Park Home Search
Royal House
Queenswood
Newport Pagnell Road West
Northampton
NN4 7JJ















