Seaton Carew, County Durham
Property information
Property Summary
Property Features
- Part Exchange available
- Fully furnished
- Community living
- Pet friendly
- Residential development
- Two bedrooms
- Over 50s
- Exceptionally high specification
- Brand new home
- Modern design
Full Details
THE HOME
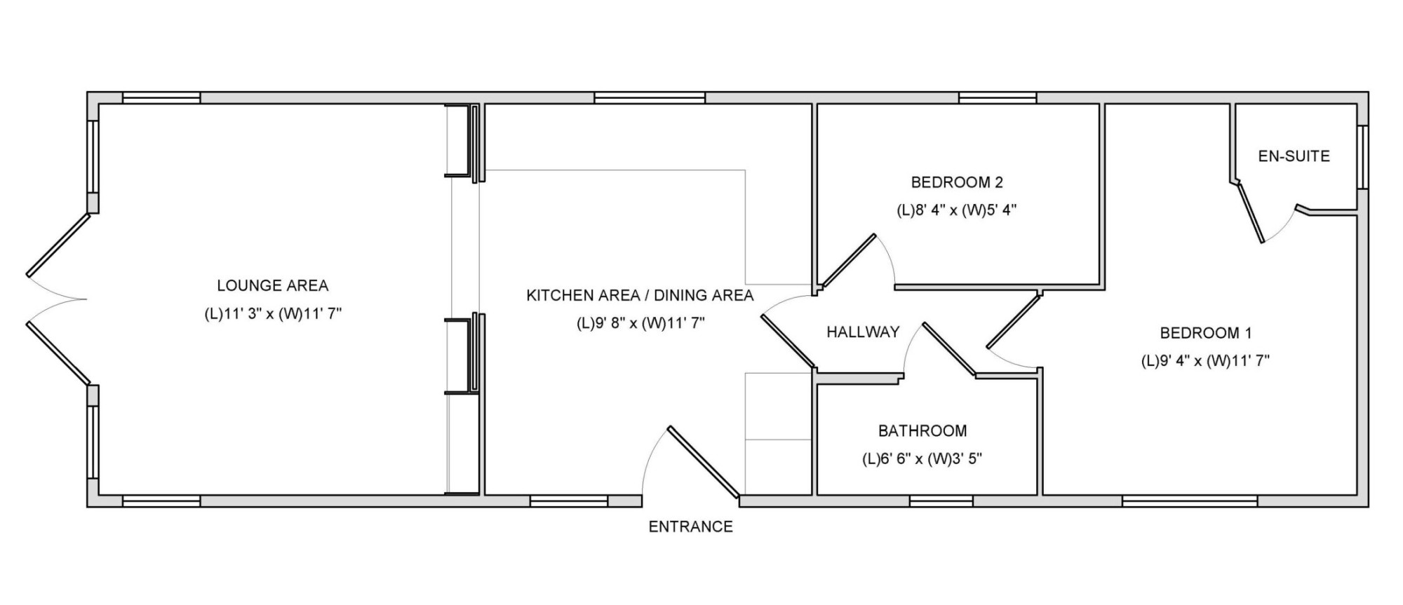
This brand new, modern-furnished Pemberton Regent (38'x12') luxury park home is perfect for those looking for a detached, easy to maintain, bungalow style retirement property. The home includes two bedrooms and one bathroom, the home is fully furnished and the kitchen has integrated appliances.
THE PARK
This park is brilliantly located in the quaint seaside village of Seaton Carew and lies less than a mile from the seafront promenade. Situated at the end of an established residential road, standing at the park entrance you look down this road and you can see the sea.
Exclusive for the over 50s, this development is pet friendly and is also gated, offering safe and secure living. The park is home to a fully licensed clubhouse, run by park residents for residents which remains a popular destination for residents to socialise and engage in community activities. There are convenient bus stops, close to the park-s main entrance. The bus service makes regularly scheduled trips the Hartlepool town centre, as well as other local areas.
THE AREA
Seaton Carew is a seaside resort two miles from Hartlepool, a destination that has remained popular since the Victorian era. As a Blue Flag beach, Seaton Carew is held in high esteem, and features many attractions. From its golden-sand beaches, to its fabulous 3 mile long promenade, Seaton Carew-s seafront has plenty to offer for people of all ages.
The town of Hartlepool provides all amenities including general shopping facilities and more options for recreational activities. The Middleton Grange Shopping Centre has plenty of retail outlets and is considered one of the largest shopping centres in the North East. Seaton train station is just one mile from the park.
HOUSE TO SELL?
Contact Quickmove for a free, no-obligation Part-Exchange valuation on this home. Enjoy a hassle-free move, with no estate agents fees or solicitors to pay. You even get to keep the keys to your existing property for 2 weeks after completion, so you can move out at your leisure.
Please note: manufacturer's stock show home image has been used and may not be a 100% true representation of the property on-site. Specifications and layouts may differ and some photos may include optional extras.
Site fees (at time of listing): £175 per month
Please note that the site fee (also known as pitch fee, or ground rent) is subject to change and reviewed annually. Ground rent can only be increased in line with the Consumer Price Index. For more information, please get in touch.
Tenure: Virtual Freehold
Virtual Freehold means that when buying a park home, you purchase the physical property outright and lease the land it sits on in perpetuity, for the entirety of the time the home is sited. These properties are not mortgageable. Please consult a solicitor for further information.
Council Tax Band: A
NOTE: The information in this property listing is correct to the best of our knowledge. We recommend any potential purchaser is aware of all details including park rules and conditions before sale completion. We also recommend consulting the Mobile Homes Act 2013 for conditions of any future sale of this property.
SMGPARKREF-302
Park Home Assist Insurance Services (Part Of Assist Insurance Services Ltd) are Authorised and Regulated by the FCA and Financial Conduct Authority and are one of the UK’s leading providers of Park Home Insurance. As one of the leading providers of Park Home Insurance we provide modern up-to-date policies specifically designed for Park Home Owners, yet pride ourselves on our old fashioned and traditional values where customer service and personal service comes first.
Our residential park home policies are new for old as standard, are underwritten by certain underwriters at Lloyd’s of London and back by our multi-award-winning claims and customer service department.
Our policies provide a combination of excellent comprehensive cover with some unique additional benefits, coupled with very competitive premiums and generous discounts. With numerous optional additional covers, every policy can be personalised to each policyholders personal circumstances, and therefore you only need to pay for what you need, ensuring that that the premium you pay reflects the cover you enjoy.
Request More Details or Viewing
Contact us today for more information and viewings.

Contact
Tel: 01604 946 733
Working Hours:
Mon-Fri 9am to 5.30pm
Correspondence Address:
Park Home Search
Royal House
Queenswood
Newport Pagnell Road West
Northampton
NN4 7JJ







