Lowestoft, Suffolk
Property information
Property Summary
Property Features
- Part Exchange available
- Community living
- Pet friendly
- Two bedrooms
- Exceptionally high specification
- Brand new home
- Modern design
- Town facilities nearby
- Coastal Location
- Over 45s
Full Details
THE HOME
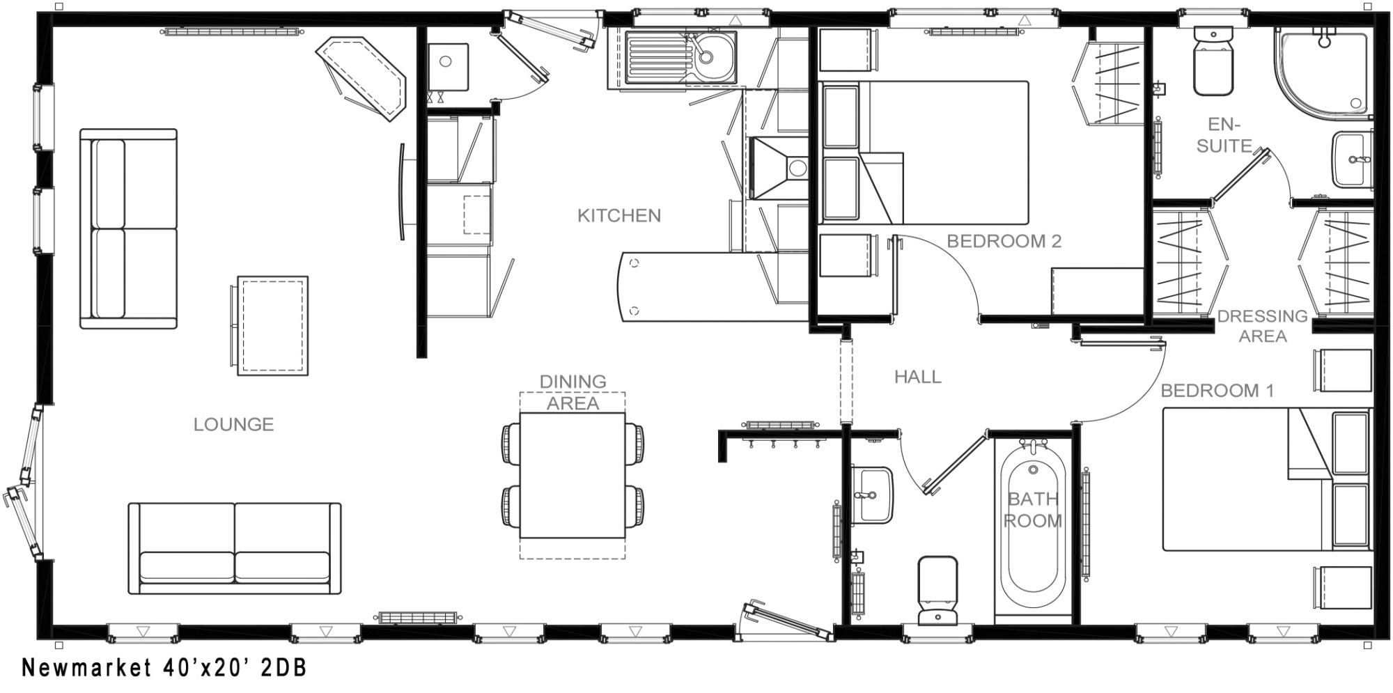
This brand-new, modern-furnished Omar Newmarket (40'x20') luxury park home is perfect for those looking for a detached, easy-to-maintain, bungalow-style property. The home has a spacious open plan kitchen and dining area. There is a comfortable living room, two double bedrooms, an en suite and a bathroom.
THE PARK
This established residential development has bran new homes coming soon. The homes are exclusive for those over 45. The park home lifestyle provides community living for like-minded people. The park is landscaped and private, to offer safe and secure living. Built in a countryside location, the park offers their residents the opportunity for an active lifestyle that is also suitable for pets.
THE AREA
The development is located right on the edge of Lowestoft, just a few miles from the coast. Lowestoft is a popular coastal town, with train stations, high street shops and traditional seaside with beaches and piers. The location of the development provides a great base for exploring the east of England, with various nature reserve, gardens and walking routes to enjoy.
Local amenities
Bus stop: 0.2 miles
Golf club: 1.1 miles
ALDI: 2.6 miles
Health centre: 3.6 miles
Train station: 4 miles
HOUSE TO SELL?
Contact Quickmove for a free, no-obligation Part-Exchange valuation on this home. Enjoy a hassle-free move, with no estate agents’ fees or solicitors to pay. You even get to keep the keys to your existing property for 2 weeks after completion, so you can move out at your leisure.
Please note: manufacturer’s stock show home images have been used and may not be a 100% true representation of the property on-site. Specifications and layouts may differ, and some photos may include optional extras.
Site fees (at time of listing): £225 per month
Please note that the site fee (also known as pitch fee, or ground rent) is subject to change and reviewed annually. Ground rent can only be increased in line with the Consumer Price Index. For more information, please get in touch.
Tenure: Virtual Freehold
Virtual Freehold means that when buying a park home, you purchase the physical property outright and lease the land it sits on in perpetuity, for the entirety of the time the home is sited. These properties are not mortgageable, if you are uncertain or would like further advice, please consult a solicitor.
Council Tax Band: A
NOTE: The information in this property listing is correct to the best of our knowledge. We recommend any potential purchaser is aware of all details including park rules and conditions before sale completion. We also recommend consulting the Mobile Homes Act 2013 for conditions of any future sale of this property.
Park Home Assist Insurance Services (Part Of Assist Insurance Services Ltd) are Authorised and Regulated by the FCA and Financial Conduct Authority and are one of the UK’s leading providers of Park Home Insurance. As one of the leading providers of Park Home Insurance we provide modern up-to-date policies specifically designed for Park Home Owners, yet pride ourselves on our old fashioned and traditional values where customer service and personal service comes first.
Our residential park home policies are new for old as standard, are underwritten by certain underwriters at Lloyd’s of London and back by our multi-award-winning claims and customer service department.
Our policies provide a combination of excellent comprehensive cover with some unique additional benefits, coupled with very competitive premiums and generous discounts. With numerous optional additional covers, every policy can be personalised to each policyholders personal circumstances, and therefore you only need to pay for what you need, ensuring that that the premium you pay reflects the cover you enjoy.
Request More Details or Viewing
Contact us today for more information and viewings.

Contact
Tel: 01604 946 733
Working Hours:
Mon-Fri 9am to 5.30pm
Correspondence Address:
Park Home Search
Royal House
Queenswood
Newport Pagnell Road West
Northampton
NN4 7JJ









