Gunthorpe, Nottinghamshire

£140,000
Residential
For Sale

Property information

Property Summary

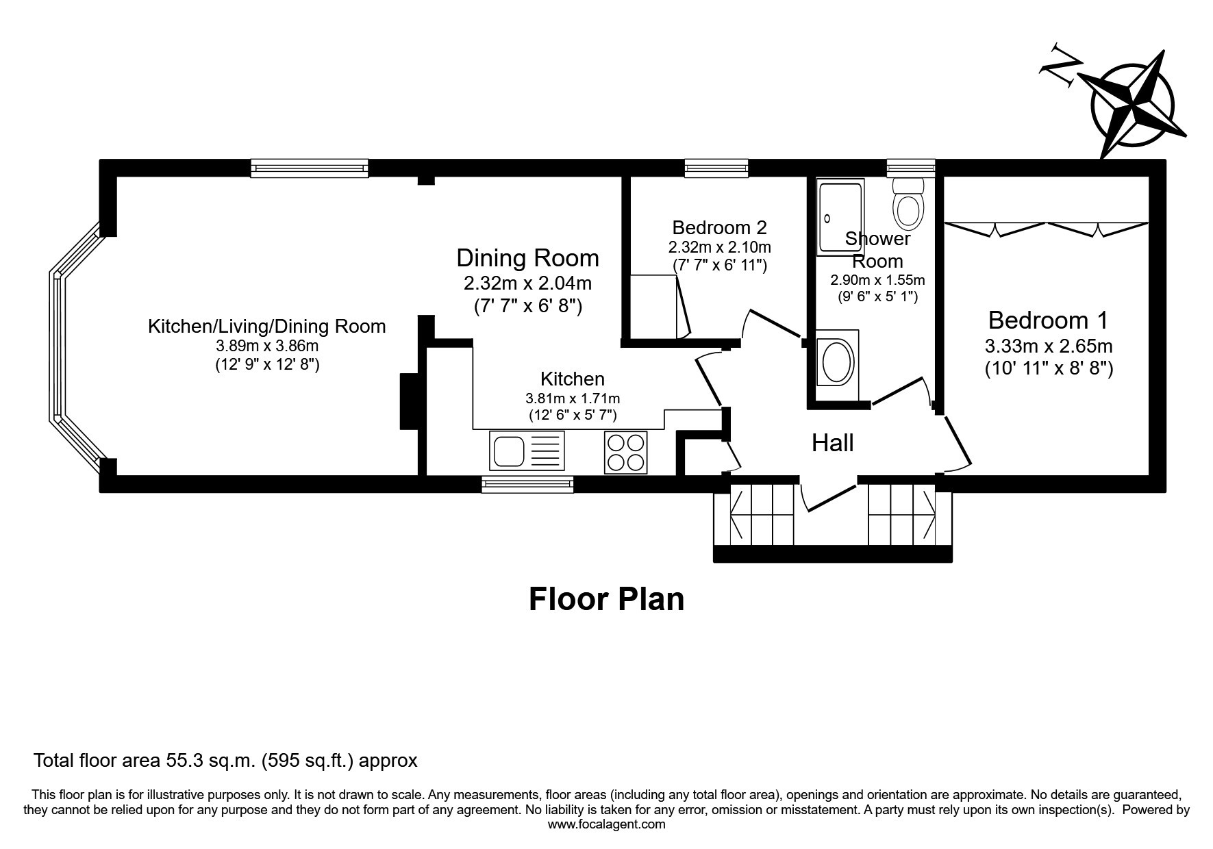
PRE OWNED Park Home (43'x13') | Residential development | Exclusive for the over 45s | Pet friendly | Close to the River Trent | Garden surrounding home | Community living | Ready to view | Vacant property | Unfurnished | Two bedrooms | Parking space | Part exchange available

Property Features

  • Community living
  • Two bedrooms
  • Garden space
  • Long-established park
  • Stunning location
  • Residential park home
  • Close to nearby amenities
  • Property is vacant
  • Unfurnished

Full Details

THE HOME
This pre-owned, vacant Homeseeker park home (43'x13') is perfect for those looking for a detached, easy to maintain, bungalow-style property. The home features two bedrooms, a kitchen, a large lounge and dining area, one bathroom. The garden surrounds the home with views of the park.

THE PARK 
This home is located on a very sought after residential development of just over 19 homes, exclusive for the over 45s. The park is close to the banks of the River Trent in Gunthorpe. Pets are welcome at the park, but they are limited to one cat and one dog per home. 

The park home lifestyle provides community living for like-minded people. The park is landscaped and private, to offer safe and secure living. Built in a countryside location, the park offers their residents the opportunity for an active lifestyle that is also suitable for pets.

THE AREA
The village of Gunthorpe is a picturesque place with a thriving local community with award winning restaurants and popular waterside pubs. Residents can find facilities in the nearby market town of Bingham and in the adjacent village of Lowdham, where there is a train station with links to Nottingham and Newark. The nearest medical center is in East Bridgeford and the nearest large supermarket is Morrisons about 4 miles away. The village is ideally placed close to the A6097 which provides links to the A46 and A52, A1 and M1.

Local amenities

Bus stop: Outside development
Train station: 1.6 miles
Medical centre: 1.8 miles
Morrisond: 4 miles
Tesco supermarket: 6.6 miles

HOUSE TO SELL?
Contact Quickmove for a free, no-obligation Part-Exchange valuation on this home. Enjoy a hassle-free move, with no estate agents’ fees or solicitors to pay. You even get to keep the keys to your existing property for 2 weeks after completion, so you can move out at your leisure.

Site fees (at time of listing): £229.52 per month
Please note that the site fee (also known as pitch fee, or ground rent) is subject to change and reviewed annually. Ground rent can only be increased in line with the Consumer Price Index. For more information, please get in touch.

Tenure: Virtual Freehold
Virtual Freehold means that when buying a park home, you purchase the physical property outright and lease the land it sits on in perpetuity, for the entirety of the time the home is sited. These properties are not mortgageable, if you are uncertain or would like further advice, please consult a solicitor.

Council Tax Band: A

NOTE: The information in this property listing is correct to the best of our knowledge. We recommend any potential purchaser is aware of all details including park rules and conditions before sale completion. We also recommend consulting the Mobile Homes Act 2013 for conditions of any future sale of this property.

Park Home Assist Insurance Services (Part Of Assist Insurance Services Ltd) are Authorised and Regulated by the FCA and Financial Conduct Authority and are one of the UK’s leading providers of Park Home Insurance. As one of the leading providers of Park Home Insurance we provide modern up-to-date policies specifically designed for Park Home Owners, yet pride ourselves on our old fashioned and traditional values where customer service and personal service comes first.

Our residential park home policies are new for old as standard, are underwritten by certain underwriters at Lloyd’s of London and back by our multi-award-winning claims and customer service department.

Our policies provide a combination of excellent comprehensive cover with some unique additional benefits, coupled with very competitive premiums and generous discounts. With numerous optional additional covers, every policy can be personalised to each policyholders personal circumstances, and therefore you only need to pay for what you need, ensuring that that the premium you pay reflects the cover you enjoy.

www.parkhomeassist.co.uk

Request More Details or Viewing

    I would like more details

    I would like to view a property

    I have a Property to sell

    I would like a Part Exchange valuation

    Sign up to updates on park homes for sale from Quickmove
    Sign up to updates on park home Insurance from Park Home Assist

    * Mandatory fields

    Contact us today for more information and viewings.

    Quickmove Properties logo