Gunnislake, Cornwall
Property information
Property Summary
Property Features
- Part Exchange available
- Fully furnished
- Pet friendly
- Residential development
- Two double bedrooms
- Over 50s
- Brand new home
- Countryside location
- Modern design
- Village facilities nearby
Full Details
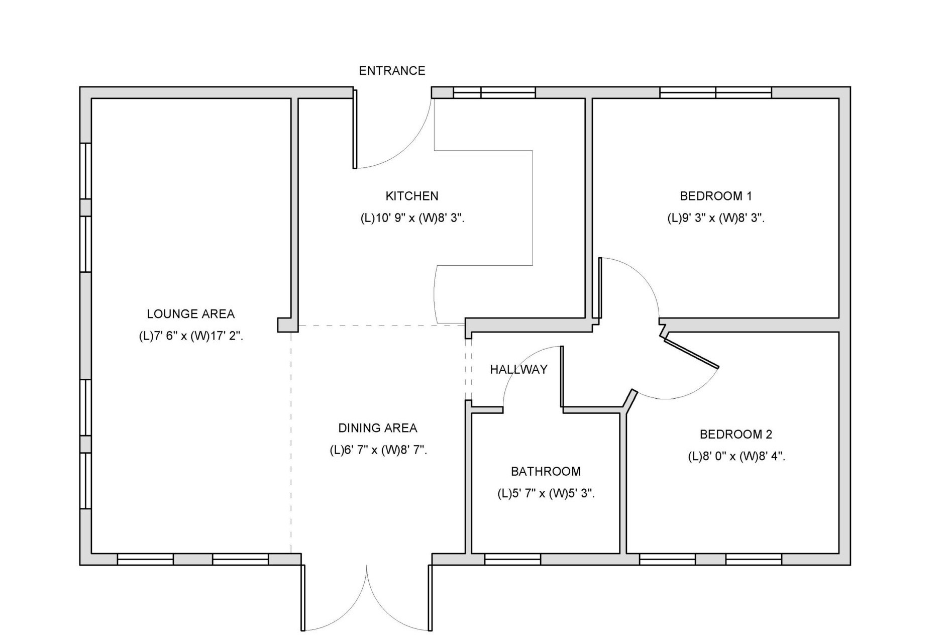
THE HOME
This brand-new, modern-furnished Omar Newmarket (29'x18') luxury park home is perfect for those looking for a detached, easy-to-maintain, bungalow-style property. The home has a spacious kitchen with integrated appliances, dining area and living room. There are two double bedrooms and a bathroom. The home sits on an elevated plot with far reaching views of the surrounding countryside.
THE PARK
This home is located on an exclusive residential park set on the scenic edge of Gunnislake, offering a tranquil rural setting with panoramic views over the Tamar Valley and surrounding countryside. The homes are exclusive for those over 50 and their pets.
Life on the park is about peace, community and quality of life. Enjoy the relaxed pace of rural Cornwall while still being part of a warm, welcoming neighbourhood of like-minded homeowners. Tamar Park is ideal for those seeking a quieter pace without sacrificing convenience — local amenities, scenic walks and community activities are right on your doorstep.
The park’s location also means you can easily explore the wonderful natural beauty of the Tamar Valley Area of Outstanding Natural Beauty (AONB) and enjoy outdoor pursuits from gentle riverside strolls to more adventurous hikes.
THE AREA
Gunnislake is a charming village nestled in the heart of the Tamar Valley, rich in history and natural beauty. Residents of Tamar Park benefit from a peaceful rural lifestyle within easy reach of everyday essentials, local pubs, shops and amenities in Gunnislake and nearby towns like Tavistock and Callington. Excellent transport links connect you to Plymouth and beyond, making it a great balance between countryside tranquillity and accessibility. The wider area boasts attractions such as the Tamar Valley Donkey Park, historic Cotehele House and Gardens, and miles of scenic walking routes — perfect for weekend adventures or peaceful days out in nature.
Local amenities
- Gunnislake Town Centre: 2.9 miles
- Callington: 3.4 miles
- Tesco Superstore: 2.9 miles
- Plymouth: 17 miles
- Calstock: 3.8 miles
- Connections to Gunnislake Train Station: 2.4 miles
- St. Mellion Estate - Golf, Spa, Gym: 6.0 miles
HOUSE TO SELL?
Contact Quickmove for a free, no-obligation Part-Exchange valuation on this home. Enjoy a hassle-free move, with no estate agents’ fees or solicitors to pay. You even get to keep the keys to your existing property for 2 weeks after completion, so you can move out at your leisure.
Site fees (at time of listing): £253 per month
Please note that the site fee (also known as pitch fee, or ground rent) is subject to change and reviewed annually. Ground rent can only be increased in line with the Consumer Price Index. For more information, please get in touch.
Tenure: Virtual Freehold
Virtual Freehold means that when buying a park home, you purchase the physical property outright and lease the land it sits on in perpetuity, for the entirety of the time the home is sited. These properties are not mortgageable, if you are uncertain or would like further advice, please consult a solicitor.
Council Tax Band: A
NOTE: The information in this property listing is correct to the best of our knowledge. We recommend any potential purchaser is aware of all details including park rules and conditions before sale completion. We also recommend consulting the Mobile Homes Act 2013 for conditions of any future sale of this property.
Park Home Assist Insurance Services (Part Of Assist Insurance Services Ltd) are Authorised and Regulated by the FCA and Financial Conduct Authority and are one of the UK’s leading providers of Park Home Insurance. As one of the leading providers of Park Home Insurance we provide modern up-to-date policies specifically designed for Park Home Owners, yet pride ourselves on our old fashioned and traditional values where customer service and personal service comes first.
Our residential park home policies are new for old as standard, are underwritten by certain underwriters at Lloyd’s of London and back by our multi-award-winning claims and customer service department.
Our policies provide a combination of excellent comprehensive cover with some unique additional benefits, coupled with very competitive premiums and generous discounts. With numerous optional additional covers, every policy can be personalised to each policyholders personal circumstances, and therefore you only need to pay for what you need, ensuring that that the premium you pay reflects the cover you enjoy.
Request More Details or Viewing
Contact us today for more information and viewings.

Contact
Tel: 01604 946 733
Working Hours:
Mon-Fri 9am to 5.30pm
Correspondence Address:
Park Home Search
Royal House
Queenswood
Newport Pagnell Road West
Northampton
NN4 7JJ












