Golden Cross Village, East Sussex
Property information
Property Summary
Property Features
- Part Exchange available
- Two bedrooms
- Private
- gated development
- Ready to view
- Pre-owned park home
- Rural Location
- Shops and amenities nearby
- Established park
Full Details
THE HOME
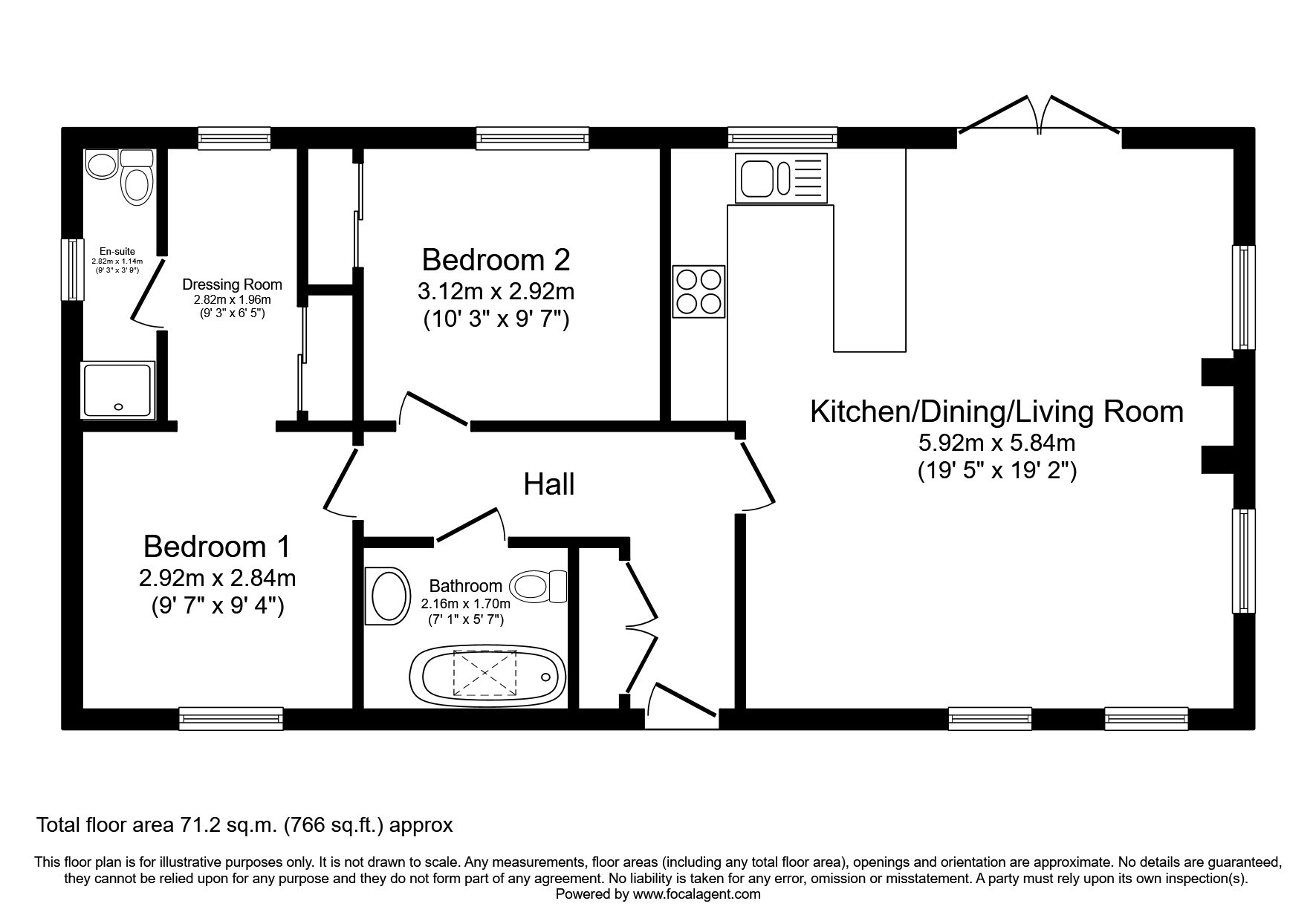
This refurbished, modern Selbly Lodge (40x20) is perfect for those looking for a detached, easy to maintain, bungalow style property in the south east of England. The home features an open plan living, kitchen and dining area. There are two bedrooms and two bathrooms, the living room includes French doors leading to a decked patio area.
THE PARK
This is an established, welcoming development of 28 lodges and exclusive for the over 45s offering friendly community living for like minded people. The development is gated, providing you the security that is not often found in busy, urban areas. It is also well located in East Sussex to explore the wonderful countryside, seaside resorts and attractions the county has to offer.
THE AREA
The development is located in the village of Golden Cross. The nearby town is home to shops, restaurants and country pubs with fine food, local ales, and live music. A few miles from the park is a championship golf course, The East Sussex National Hotel which also features spa facilities and a swimming pool.
A short drive away is the seaside town of Eastbourne, which is home to quaint shops, promenade walks, pier and beaches, and the South Downs National Park perfect for stunning views and walks. A wonderful place to spend a sunny afternoon with visiting friends and family.
Local amenities
- Bus stop outside the park
- Golden Cross public house at the entrance
- Spar shop nearby for essentials
- Tesco Superstore – 4 miles
- Hailsham Town Centre – 5 miles
- Healthfield Town & Waitrose - 6 miles
- Glyndebourne Opera House - 7 miles
- Uckfield Town and Railway Station – 9 miles
- Eastbourne seafront - 13 miles
- Beachy Head - 14 miles
- Sheffield Trust and Gardens, National Trust – 15 miles
- Brighton seafront - 18 miles
HOUSE TO SELL?
Contact Quickmove for a free, no-obligation Part-Exchange valuation on this home. Enjoy a hassle-free move, with no estate agents’ fees or solicitors to pay. You even get to keep the keys to your existing property for 2 weeks after completion, so you can move out at your leisure.
Site fees (at time of listing): £3,100 per year
Please note that the site fee (also known as pitch fee, or ground rent) is subject to change and reviewed annually. Ground rent can only be increased in line with the Consumer Price Index. For more information, please get in touch.
Tenure: Virtual Freehold
Virtual Freehold means that when buying a park home, you purchase the physical property outright and lease the land it sits on in perpetuity, for the entirety of the time the home is sited. These properties are not mortgageable, if you are uncertain or would like further advice, please consult a solicitor.
NOTE: The information in this property listing is correct to the best of our knowledge. We recommend any potential purchaser is aware of all details including park rules and conditions before sale completion. We also recommend consulting the Mobile Homes Act 2013 for conditions of any future sale of this property.
Park Home Assist Insurance Services (Part Of Assist Insurance Services Ltd) are Authorised and Regulated by the FCA and Financial Conduct Authority and are one of the UK’s leading providers of Park Home Insurance. As one of the leading providers of Park Home Insurance we provide modern up-to-date policies specifically designed for Park Home Owners, yet pride ourselves on our old fashioned and traditional values where customer service and personal service comes first.
Our residential park home policies are new for old as standard, are underwritten by certain underwriters at Lloyd’s of London and back by our multi-award-winning claims and customer service department.
Our policies provide a combination of excellent comprehensive cover with some unique additional benefits, coupled with very competitive premiums and generous discounts. With numerous optional additional covers, every policy can be personalised to each policyholders personal circumstances, and therefore you only need to pay for what you need, ensuring that that the premium you pay reflects the cover you enjoy.
Request More Details or Viewing
Contact us today for more information and viewings.

Contact
Tel: 01604 946 733
Working Hours:
Mon-Fri 9am to 5.30pm
Correspondence Address:
Park Home Search
Royal House
Queenswood
Newport Pagnell Road West
Northampton
NN4 7JJ









