Fakenham, Norfolk
Property information
Property Summary
Property Features
- Fully furnished
- Pet friendly
- Countryside views
- Residential development
- Up to 100% part exchange available
- Over 50s
- Parking space
- Brand new home
- Garden space
- Three bedrooms
Full Details
THE HOME
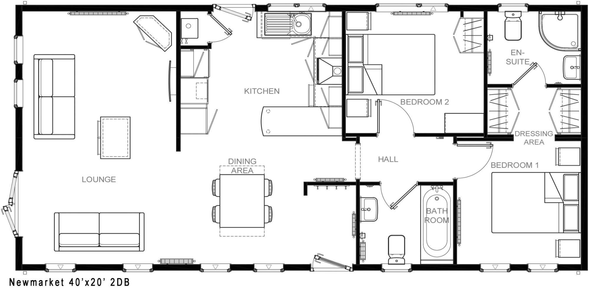
This brand new, modern-furnished Omar Newmarket (40'x20') luxury park home is perfect for those looking for a detached, easy to maintain, bungalow-style property. The home features a fitted kitchen with integrated appliances, comfortable living area, two bedrooms, an en suite to the master bedroom and a family bathroom. The landscaped exterior boasts a landscaped garden and driveway.
THE PARK
This established, welcoming development is exclusive for the over 50s. It is pet friendly and located in a semi-rural area outside on Fakenham. The park home lifestyle provides community living for like-minded people. This park is landscaped and private, to offer safe and secure living. Built in a countryside locations the park offers residents the opportunity for an active lifestyle that is also suitable for pets.
THE AREA
The development is 1.5 miles from the market town of Fakenham, where you can find lovely shops, pubs and restaurants. Fakenham race course is nearby, as is Raynham Park. The city of Norwich is less than an hour away. The Norfolk coast is an Area of Outstanding Natural Beauty, is just 12 miles away, with plenty of beaches and walking routes to enjoy.
Local amenities
Bus stop: Outside development
Tesco superstore – 1.8 miles
Fakenham Medical Practice – 3 miles
Get up to 100% Market Value Part Exchange!
HOME EXCHANGE EXAMPLE:
Value of your existing home*......................£300,000
Price of new park home..............................£225,000
Cash for you to enjoy....................................£75,000
Amount you pay - Zero. No estate agent fees. No solicitor's fees. No stamp duty.
* Market value of your home is likely selling price based on independent estate agents’ appraisals and part exchange assessment, subject to survey.
Please note: manufacturer’s stock show home images have been used and may not be a 100% true representation of the property on-site. Specifications and layouts may differ, and some photos may include optional extras.
Site fees (at time of listing): £200 per month
Please note that the site fee (also known as pitch fee, or ground rent) is subject to change and reviewed annually. Ground rent can only be increased in line with the Consumer Price Index. For more information, please get in touch.
Tenure: Virtual Freehold
Virtual Freehold means that when buying a park home, you purchase the physical property outright and lease the land it sits on in perpetuity, for the entirety of the time the home is sited. These properties are not mortgageable. Please consult a solicitor for further information.
Council Tax Band: A
NOTE: The information in this property listing is correct to the best of our knowledge. We recommend any potential purchaser is aware of all details including park rules and conditions before sale completion. We also recommend consulting the Mobile Homes Act 2013 for conditions of any future sale of this property.
Park Home Assist Insurance Services (Part Of Assist Insurance Services Ltd) are Authorised and Regulated by the FCA and Financial Conduct Authority and are one of the UK’s leading providers of Park Home Insurance. As one of the leading providers of Park Home Insurance we provide modern up-to-date policies specifically designed for Park Home Owners, yet pride ourselves on our old fashioned and traditional values where customer service and personal service comes first.
Our residential park home policies are new for old as standard, are underwritten by certain underwriters at Lloyd’s of London and back by our multi-award-winning claims and customer service department.
Our policies provide a combination of excellent comprehensive cover with some unique additional benefits, coupled with very competitive premiums and generous discounts. With numerous optional additional covers, every policy can be personalised to each policyholders personal circumstances, and therefore you only need to pay for what you need, ensuring that that the premium you pay reflects the cover you enjoy.
Request More Details or Viewing
Contact us today for more information and viewings.

Contact
Tel: 01604 946 733
Working Hours:
Mon-Fri 9am to 5.30pm
Correspondence Address:
Park Home Search
Royal House
Queenswood
Newport Pagnell Road West
Northampton
NN4 7JJ














