Etchingham, East Sussex
Property information
Property Summary
Property Features
- Part Exchange available
- Garage and driveway
- Residential development
- Two bedrooms
- Garden space
- Dog friendly
- Well maintained home
- Pre-owned park home
- Established park
- Over 45s
Full Details
THE HOME
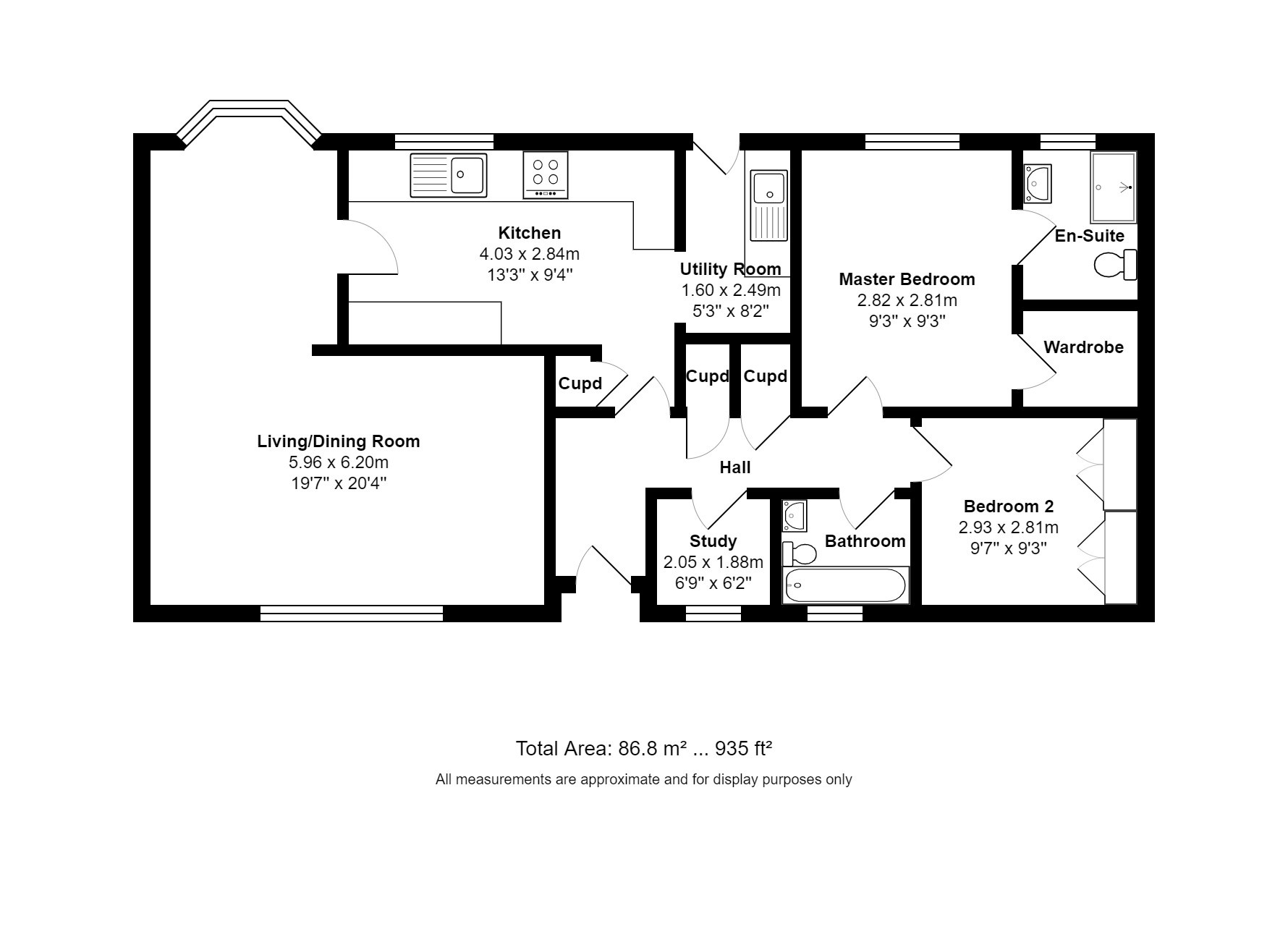
This pre-owned Tingdene Dolben park home is perfect for those looking for a detached, easy to maintain, bungalow-style property. This home is a well appointed two double bedroom (48'x20') park home bungalow situated on this sought after residential park for the over 45's. The home boasts a generous garden area and a garage with driveway.
THE PARK
The home is located on an established development, close to amenities. The park is exclusively for the over 45s and is one of the most sought-after developments in the area. The park is well suited to the more active, who enjoy stunning scenery and long country walks. A mini-market and retail stores are within a minute’s drive.
THE AREA
Boasting an attractive rural woodland setting, this residential development is ideally located for those looking for a comforting retreat well away from the hustle and bustle of busy city life. Burwash Village has many interesting buildings along its tree-lined streets, with parts dating from before the 16th century, the village also has local amenities including pubs and a convenience store. The main shopping centre for Burwash is in the small town of Heathfield, which is about six miles away. The nearest large town shopping centers are in Hastings, which is about 12 miles away, and Tunbridge Wells, which is 15 miles away.
HOUSE TO SELL?
Contact Quickmove for a free, no-obligation Part-Exchange valuation on this home. Enjoy a hassle-free move, with no estate agents’ fees or solicitors to pay. You even get to keep the keys to your existing property for 2 weeks after completion, so you can move out at your leisure.
Site fees (at time of listing): £217 per month
Please note that the site fee (also known as pitch fee, or ground rent) is subject to change and reviewed annually. Ground rent can only be increased in line with the Consumer Price Index. For more information, please get in touch.
Tenure: Virtual Freehold
Virtual Freehold means that when buying a park home, you purchase the physical property outright and lease the land it sits on in perpetuity, for the entirety of the time the home is sited. These properties are not mortgageable. Please consult a solicitor for further information.
Council Tax Band: B
NOTE: The information in this property listing is correct to the best of our knowledge. We recommend any potential purchaser is aware of all details including park rules and conditions before sale completion. We also recommend consulting the Mobile Homes Act 2013 for conditions of any future sale of this property.
SMGPARKREF-6119
Park Home Assist Insurance Services (Part Of Assist Insurance Services Ltd) are Authorised and Regulated by the FCA and Financial Conduct Authority and are one of the UK’s leading providers of Park Home Insurance. As one of the leading providers of Park Home Insurance we provide modern up-to-date policies specifically designed for Park Home Owners, yet pride ourselves on our old fashioned and traditional values where customer service and personal service comes first.
Our residential park home policies are new for old as standard, are underwritten by certain underwriters at Lloyd’s of London and back by our multi-award-winning claims and customer service department.
Our policies provide a combination of excellent comprehensive cover with some unique additional benefits, coupled with very competitive premiums and generous discounts. With numerous optional additional covers, every policy can be personalised to each policyholders personal circumstances, and therefore you only need to pay for what you need, ensuring that that the premium you pay reflects the cover you enjoy.
Request More Details or Viewing
Contact us today for more information and viewings.

Contact
Tel: 01604 946 733
Working Hours:
Mon-Fri 9am to 5.30pm
Correspondence Address:
Park Home Search
Royal House
Queenswood
Newport Pagnell Road West
Northampton
NN4 7JJ

















