Deeside, Wales
Property information
Property Summary
Property Features
- Community living
- Residential development
- Over 50s
- Countryside location
- Close to the coast
- Pre-owned park home
- Part exchange for a quick sale
- Property is vacant
- Unfurnished
Full Details
THE HOME
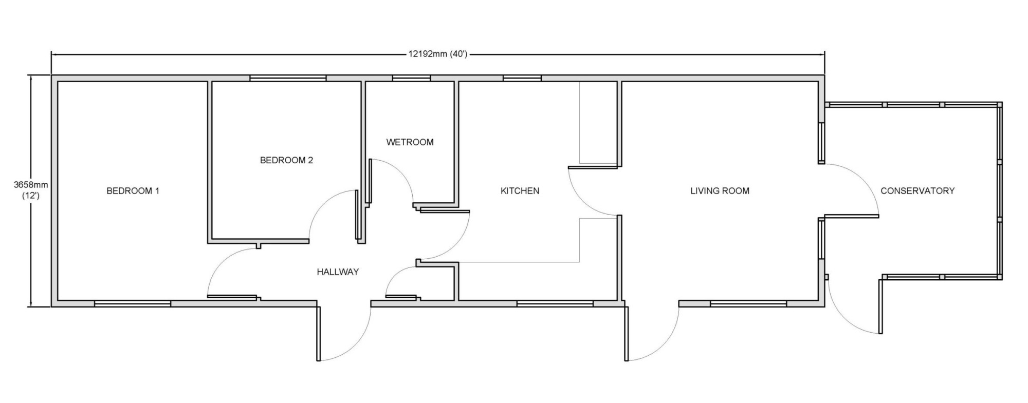
This pre-owned (40'x12') park home is perfect for those looking for a detached, easy to maintain, bungalow style property. The home has a kitchen and diner with base and eye level unit. There is a lounge with a feature wall and an electric fireplace, and a conservatory leading from the lounge. The home ha sone double and one single bedroom and a wet room.
The location of this home is one of its main benefits with views over open fields. The plot is located at the end of a road giving more privacy than usual and is gives larger than average outside living space
THE PARK
This peaceful, tree-lined park has great community spirit. All of the homes are well spaced apart to provide ample privacy, and a dedicated maintenance team keep the park looking lovely. Pets permitted when you buy a new home on this park.
THE AREA
Just a short drive away is the stunning coast and countryside of North Wales featuring lots of fascinating ancient culture and heritage. Close to the park are shops and amenities located in Queensferry. Liverpool city centre in 25 miles from the park and is full of entertainment venues, high street shopping, restaurants and historic sites.
Site fees: £212.99 per month
Please note that the site fee (also known as 'pitch fee', or 'ground rent') is subject to change and reviewed annually. Ground rent can only be increased in line with the Consumer Price Index. For more information, please get in touch.
Tenure: 'Virtual Freehold'
'Virtual Freehold' means that when buying a park home, you purchase the physical property outright and lease the land it sits on in perpetuity, for the entirety of the time the home is sited. These properties are not mortgageable. Please consult a solicitor for further information.
HOUSE TO SELL?
Hassle-free property Part-Exchange is available from recommended part-exchange specialists Quickmove Properties, with no estate agent fees, no solicitors fees and no market uncertainty.
Council Tax Band A or B
NOTE: The information in this property listing is correct to the best of our knowledge. We recommend any potential purchaser is aware of all details including park rules and conditions before sale completion. We also recommend consulting the Mobile Homes Act 2013 for conditions of any future sale of this property.
Park Home Assist Insurance Services (Part Of Assist Insurance Services Ltd) are Authorised and Regulated by the FCA and Financial Conduct Authority and are one of the UK’s leading providers of Park Home Insurance. As one of the leading providers of Park Home Insurance we provide modern up-to-date policies specifically designed for Park Home Owners, yet pride ourselves on our old fashioned and traditional values where customer service and personal service comes first.
Our residential park home policies are new for old as standard, are underwritten by certain underwriters at Lloyd’s of London and back by our multi-award-winning claims and customer service department.
Our policies provide a combination of excellent comprehensive cover with some unique additional benefits, coupled with very competitive premiums and generous discounts. With numerous optional additional covers, every policy can be personalised to each policyholders personal circumstances, and therefore you only need to pay for what you need, ensuring that that the premium you pay reflects the cover you enjoy.
Request More Details or Viewing
Contact us today for more information and viewings.

Contact
Tel: 01604 946 733
Working Hours:
Mon-Fri 9am to 5.30pm
Correspondence Address:
Park Home Search
Royal House
Queenswood
Newport Pagnell Road West
Northampton
NN4 7JJ










