Almondsbury, Bristol
Property information
Property Summary
Property Features
- Part Exchange available
- Luxury 2 bed park bungalow
- Community living
- Over 50s
- Parking space
- Brand new home
- Fully fitted kitchen
- Outstanding location
- Residential park
- Established park
Full Details
Residential Park of the Year 2024 winner!
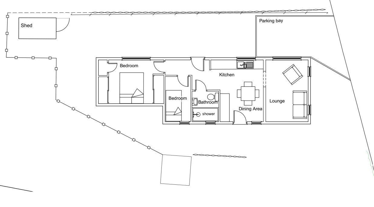
THE HOME
This brand new, modern Manor Lancaster (45'x14') park home is perfect for those looking for a detached, easy to maintain, bungalow-style property. The homes has a modern kitchen with integrated appliances, comfortable living room with a fireplace, two bedrooms and a bathroom. The home has a garden space with shed.
- Mains gas charged by supplier
- Mains electric charged by supplier
- Water/sewerage payable to park
THE PARK
This is a well established park for the over 50s. This park has a lovely place for entertaining and socializing, which is run by the residents for the residents. This space is opens daily for bingo, coffee mornings, line dancing. Just a short drive from this park is Cribbs Causeway, the major shopping area which boasts all the major retail outlets plus a large entertainment complex the whole of which is within a short car/bus ride.
THE AREA
This park has excellent amenities close by, including a medical centre and good shopping facilities. A mobile library visits the park regularly. There is easy access to the M4 and M5 motorways and frequent buses run from the park to Bristol. Bristol itself has superb shopping and entertainment centres and many places of historical interest to visit, such as Cabot's Tower, the SS Great Britain and the world famous Clifton Suspension Bridge.
HOUSE TO SELL?
Contact Quickmove for a free, no-obligation Part-Exchange valuation on this home. Enjoy a hassle-free move, with no estate agents’ fees or solicitors to pay. You even get to keep the keys to your existing property for 2 weeks after completion, so you can move out at your leisure.
Site fees (at time of listing): £238 per month
Please note that the site fee (also known as pitch fee, or ground rent) is subject to change and reviewed annually. Ground rent can only be increased in line with the Consumer Price Index. For more information, please get in touch.
Tenure: Virtual Freehold
Virtual Freehold means that when buying a park home, you purchase the physical property outright and lease the land it sits on in perpetuity, for the entirety of the time the home is sited. These properties are not mortgageable, if you are uncertain or would like further advice, please consult a solicitor.
Council Tax Band: A
NOTE: The information in this property listing is correct to the best of our knowledge. We recommend any potential purchaser is aware of all details including park rules and conditions before sale completion. We also recommend consulting the Mobile Homes Act 2013 for conditions of any future sale of this property.
Park Home Assist Insurance Services (Part Of Assist Insurance Services Ltd) are Authorised and Regulated by the FCA and Financial Conduct Authority and are one of the UK’s leading providers of Park Home Insurance. As one of the leading providers of Park Home Insurance we provide modern up-to-date policies specifically designed for Park Home Owners, yet pride ourselves on our old fashioned and traditional values where customer service and personal service comes first.
Our residential park home policies are new for old as standard, are underwritten by certain underwriters at Lloyd’s of London and back by our multi-award-winning claims and customer service department.
Our policies provide a combination of excellent comprehensive cover with some unique additional benefits, coupled with very competitive premiums and generous discounts. With numerous optional additional covers, every policy can be personalised to each policyholders personal circumstances, and therefore you only need to pay for what you need, ensuring that that the premium you pay reflects the cover you enjoy.
Request More Details or Viewing
Contact us today for more information and viewings.

Contact
Tel: 01604 946 733
Working Hours:
Mon-Fri 9am to 5.30pm
Correspondence Address:
Park Home Search
Royal House
Queenswood
Newport Pagnell Road West
Northampton
NN4 7JJ













